SERVICE
服務項目

LANDSCAPE DESIGN
景觀設計

01

STEP 1 - 前期溝通

專案承攬前先藉由作品分享與專案需求討論,凝聚雙方對專案目標的共識

公司執行專案簡介

>介紹上森景觀團隊組成與過往執行專案。

服務流程說明

>規劃設計流程與各階段提交成果說明。

了解專案基地位置與需求

>藉由以上資訊理解實際需求與專案特性。

依面積及服務內容進行報價

>以單位面積(m²)設計費用為報價基礎,費用則依基地面積與服務內容不同而有差異,並以「服務計劃書」形式呈現服務內容、報價與各階段請款條件。

景觀服務面積計算

STEP 2 - 報價確認與合約簽訂

經由「服務計劃書」與「合約」來確認及保障雙方對景觀設計工作的定義與權力

服務計劃書回簽確認

>「服務計劃書」回簽後即為同意相關服務內容與服務費用,並以此內容為合約製作基礎。

雙方合約簽訂完成

>合約提供方式可為由上森提供制式合約或依甲方合約調整,合約簽訂後即展開各階段工作。

上森服務計劃書

STEP 3 - 初步設計

以專案需求與基地分析成果進行初步設計,內容包含機能分區、動線、植栽、景觀設施與材料等,藉此呈現專案輪廓

基地分析

>針對基地周邊動線、排水設施、自然環境、高程、歷史人文等會影響設計方案發展的重要資訊以平面或3D效果圖方式進行分析成果說明。

平面配置概念

>整合專案需求與上述分析條件後進行平面圖說配置,並搭配分區圖、動線圖等系統圖說說明配置構想。

植栽規劃構想與建議植種

>依上述兩項成果以示意照片方式來進行植栽搭配風格、種類、樹木型態的建議。

景觀設施材料建議

>運用示意照片或3D效果圖對空間氛圍、材質種類與色彩等進行初步建議。

植栽選種概念

植栽配置構想與植種建議

STEP 4 - 方案設計

此階段為進行細部設計前的重點工作,藉由各類圖說來呈現整體景觀樣貌與各景觀工項的分佈位置與數量

平面配置與示意照片

>除平面配置圖外,另將植栽、鋪面、照明、排水、景觀設施等構成整體景觀樣貌的項目以示意照片的方式輔助進行說明。

3D效果與剖立面圖

>運用實際種植的植栽種、資材素材等來製作景觀重點空間的3D效果圖與剖立面圖,藉此來檢討高程關係與空間氛圍。

方案設計討論圖說-地坪與景觀設施

方案設計討論圖說-植栽

STEP 5 - 細部設計

共分為景觀基本系統項目與其他景觀設施物兩大項,運用圖說來說明配置位置、尺寸、材質、數量等,以作為預算概估的基礎

景觀基本系統項目

>針對高程、排水、地坪、植栽、噴灌、照明等景觀系統基本項目以平面系統圖的方式說明其配置位置與數量。

其他景觀設施物

>針對街道家具、棚架、指標牌及公共藝術等景觀空間中的設施物以平、立面圖或3D效果圖來說明設置位置、尺寸、材質等。

細部設計討論圖說-地坪

細部設計討論圖說-景觀設施

STEP 6 - 工程預算概估

以細部設計成果進行預算概估,主要目的即希望設計成果能與實際執行預算相符

設計項目數量計算

>以已定案之系統圖與景觀設施圖說進行數量統計,作為預算編列時的基礎。

預算書製作

>以各景觀項目單位面積造價或單價進行整體預算概估,項目計有假設工程、植栽、面飾、排水、照明、噴灌、各類景觀設施、植栽養護等,實際項目則依各專案執行內容進行調整。

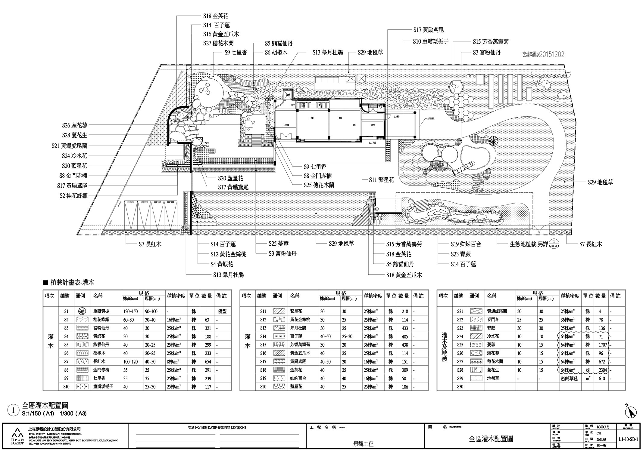
數量計算圖說-灌木

數量計算圖說-景觀設施結構

預算書

STEP 7 - 施工大樣圖說繪製

平面配置與細部設計定案後即進行施工圖說繪製作業,以提供景觀工程發包所需的基本圖說

繪製景觀系統圖(高程及排水規劃、鋪面與植栽配置圖等)

>針對高程、排水、地坪、植栽、噴灌、照明等景觀系統基本項目以平面系統圖的方式說明其配置位置與數量。

繪製各項景觀設施細部圖

>針對街道家具、棚架、指標牌及公共藝術等景觀空間中的設施物以平、立面圖或3D效果圖來說明設置位置、尺寸、材質等。

訂立景觀工程施工規範

>針對景觀工程各工項訂定施工規範,以作為工程施工與監造檢驗之參考。

系統圖-灌木

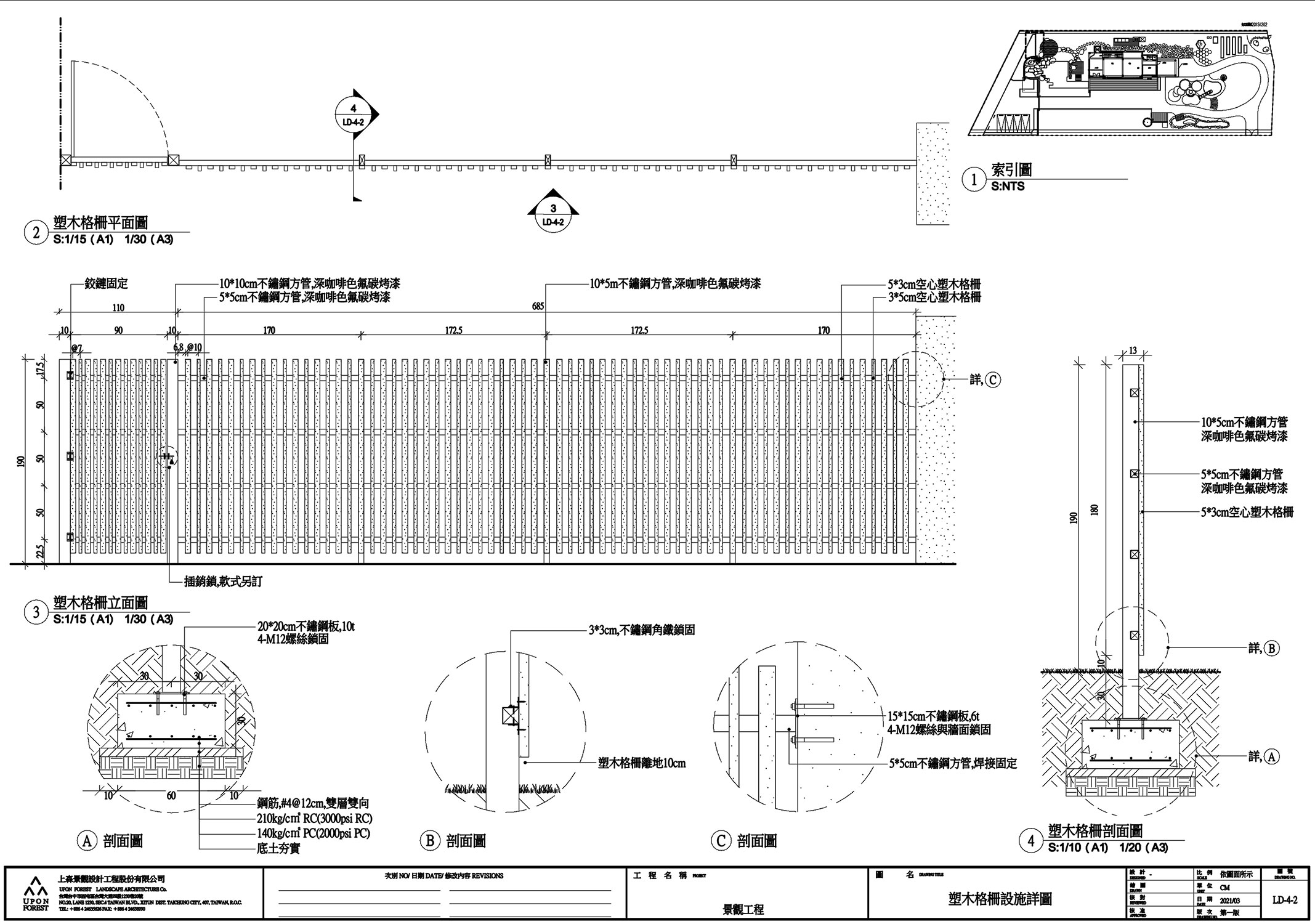
設施細部詳圖

景觀施工規範

STEP 8 - 工程發包文件整合

為協助業主順利執行發包工作,遂以景觀發包圖說、預算書及材料板做為成果交付,供業主及承攬廠商檢核與參考

景觀發包圖說

>將設計成果依系統圖、剖立面圖、細部大樣圖等圖說彙整成一完整的施工圖說,以做為工程發包使用。

景觀預算書

>依專案設計成果編列景觀工程各工項之執行預算,項目計有:植栽、面飾、排水、照明、噴灌、各類景觀設施、植栽養護等,實際項目則依各專案執行內容進行調整。

景觀面飾材材料板

>針對地坪、花台、牆面等面飾材材料製作樣品板,用以確認欲施作材料之正確性。

景觀發包圖目錄

景觀預算書

樣品板

STEP 9 - 重點監造

監造重點主要為結構施作範圍、植栽種植效果、地坪拼花效果等確認現場施作成果是否符合設計原意

施工圖說釋疑

>配合投標或工程承攬廠商提出之圖面未盡交代的地方進行補充及回覆。

重點樹木選定

>協助業主確認由工程承攬廠商挑選之各焦點主樹規格、分支點高度、姿態等,以讓栽種的樹木可符合設計需求。

景觀材料覆核

>協助業主確認工程承攬廠商所提出之面飾、植栽、燈具、排水資材等景觀資材正確性,若有替代材料時,則確認其適宜性及是否能與原設計風格相符。

現場細部調整

>於合約簽訂的現場監造次數中,配合業主需求至現場確認工程承攬廠商之施作成果是否符合設計原意,並於現場提出調整建議。

LANDSCAPE ENGINEERING
景觀工程

02

STEP 1 - 案件接洽

電話或其他通訊

參與投標發包

業主指定

規劃統包

STEP 2 - 簽訂合約

合約簽訂流程,其內容藉由工程合約項目檢查表進行簽約內容檢查,主要有:付款方式、工程期限、保固期限、安全衛生及保險、特殊條款...等等。

簽約內容

付款方式

工程期限

保固期限

發包圖

安全衛生及保險

特殊條款

合約書

工程合約項目檢查表

STEP 3 - 施工前

起始會議

>安排專案組織人員、施作項目發包說明、工進安排、現場交底等等。

施工計畫

>由專案負責人編寫完整施工步驟、自主檢查要點、介面處理、預定進度等。

現勘回饋測量

>回測收方現場尺寸,回套與原發包圖是否有差異。

送審作業

>依合約及發包圖提送施作材料、安排驗苗、工廠廠驗給於業主方審核。

價值工程建議

>依合約項目提供更有加乘價值的替選方案。

起始會議

施工計劃書

送審及簽核

STEP 4 - 施工中

進度會議

>施工中例行性召開進度會議共同推動進度及介面協調,並記錄會議內容確實執行。

材料檢驗合格進場

>安排廠驗、驗苗檢核材料品質,讓合格材料進場幫助工作順利完成。

放樣工進安排

>精準的放樣程序,妥善安排工作項目。

工班機具進場管控

>現場工班人員、施工機械、操作工具,嚴格管理發揮施工效益。

試驗檢測

>配合現場階段性檢測,確保材料及施工品質。

進度會議

進度會議紀錄

工進安排

試驗檢測

STEP 5 - 施工後

驗收保固

>工程完成先自主檢測完善後,邀約業主辦理驗收程序,合格通過後進入責任保固期程。

巡檢維護

>保固期程中,安排定期檢查及植栽維護,遇突發狀況以立即處理,確保施工品質的延續。

售後服務

>保固期程完成後,提供專案移交清冊,後續業主遇有專案需求,盡力配合提供所需的協助,培養長久的合作關係。

驗收紀錄

移交清冊

進度會議

LANDSCAPE MAINTENANCE
景觀維護

03

STEP 1 - 前期估價

現勘植栽狀況、動線

確認植栽數量

>喬、灌木、草皮、地被...等。

檢測土壤性質

>pH、EC、透水性、硬度。

依專案性質分類

>豪宅建案、廠房、生態養護場域、陵園。

STEP 2 - 報價確認與合約簽訂

主要以養護人力、肥料與土壤改良資材、病蟲害防治、五金令料等項目,與業主確認細項,噴灌設備維護、植栽保活、3m喬木修剪等實作實算項目。

報價單回簽確認每月工數、資材、耗材、是否保活、噴灌設備、喬木修剪範圍…等內容

雙方合約簽訂完成

STEP 3 - 養護預排

以信件或LINE群組方式確認次月預排時間及工項

需修改時間及增減項目可溝通調整

STEP 4 - 養護實際執行

實際執行

>割草、修剪...等。

植栽異常紀錄&回報

施作前後照片記錄

STEP 5 - 紀錄與請款

提供養護紀錄及照片

檢附請款資料

開立發票

STEP 6 - 調整建議回饋

依施作時現場環境提出改善建議

若有需要追加費用則提出報價

依業主意見調整